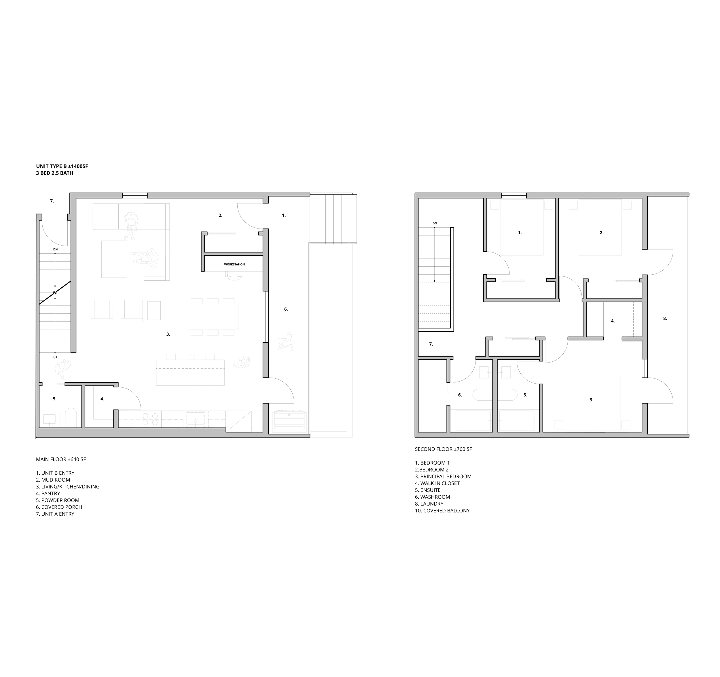
Des Meurons 4plex4 units±4300sfIn Progress Slide 1 Slide 1 (current slide) Slide 2 Slide 2 (current slide)